KAWARAMACHI PLACE

KAWARAMACHI PLACE|402号室募集のお知らせ

Photo by Yuna Yagi
 

KAWARAMACHI PLACE 402号室、募集中です。

元々バスルーム付きのお部屋でしたが、ワークスペースとして使いやすいよう間取りを変え、
広いワンルームにトイレとミニキッチン付きのお部屋へとリノベーションしています。

壁は白のペンキ塗装。床はモルタル床で、爽やかな開放感のある空間です。
東向きのお部屋で、足元まで全面ガラス張りの開口部からは気持ちよく自然光が差し込みます。

バスルームはありませんが、すぐ徒歩圏内に人気の銭湯もありますので
ワークスペースのみならず、住居としてやセカンドハウスとしてもおすすめです。

京阪「清水五条」駅から徒歩5分。地下鉄「五条」駅からも徒歩10分ほどで、
阪急河原町駅や京都駅へも、徒歩圏内。自転車なら10分以内とアクセス良好な立地です。

鴨川もすぐそばで、さらに近くの高瀬川は整備が進み、小川沿いを散歩したり休憩したりも気持ち良いです。
周辺には、素敵なカフェやお料理屋さん、ショップやバーやホテルまで、充実のエリアと年々新たに進化をしている場所です。
落ち着く気持ちよさも刺激もある河原町五条界隈、おすすめの物件です。

ご興味をお持ちいただけましたら、ぜひ一度ご内覧ください。
下記よりお問い合わせ、お待ちしております。
https://www.hase-building.co.jp/contact/

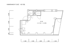
402号室

  • 広さ

  • 賃料

  • 共益費

  • 敷金

  • 礼金

  • 更新料

  • その他

TOP